Mô tả

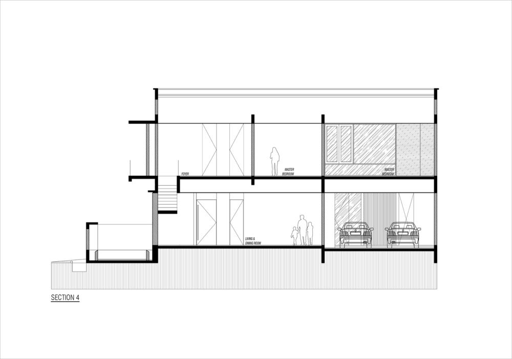
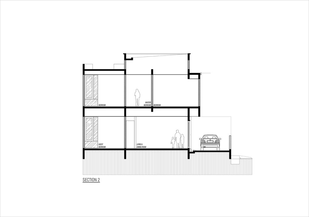
Biệt thự Axiom sáng tạo, hiện đại và độc đáo mang đến vẻ đẹp đầy ấn tượng. Vẻ bề thế, đẳng cấp chính là những tính từ miêu tả không gian này. Savior đầu tư tâm huyết vào từng sản phẩm, mang đến không gian sống ưng ý cho mỗi khách hàng.

Share:

q1
q2
q3
q4
q5
q6
q7
q8
q9
q10
q11
q12
q13
q14
q15

TRỌN VẸN ĐẶC QUYỀN TẠI TH HOME

- Đội ngũ Kiến Trúc Sư, kỹ sư có Kinh nghiệm trên 7 năm trong lĩnh vực thiết kế nội thất cao cấp
- Đội ngũ kỹ thuật Khảo sát hiện trạng trên công trình hoặc kiếm tra các hạng mục của chủ đầu tư bàn giao nếu có.
- Đưa 02 phương án 2D bố trí công năng kèm thuyết trình
- Đặc quyền chỉnh sửa thiết kế 3D
- Tư vấn bố trí mặt bằng theo phong thuỷ
- Nhận hồ sợ thiết kế kèm báo giá chi tiết sau 7 đến 10 ngày kể từ khi chốt 3D ( Hồ sơ chuẩn VIP )
- Giám sát quyền tác giả
- Xe đưa đón thăm quan xưởng sản xuất 3000m2.
- Hỗ trợ thủ tục xin cấp phép liên quan đến công trình
- Cán bộ kỹ thuật giám sát tại công trình 24/24
- Nghệ nhân làng nghề với hơn 20 năm kinh nghiệm làm các sản phẩm cao cấp
- Hệ thống máy móc trang thiết bị công nghệ cao
- Vật liệu hoàn thiện 100% nhập khẩu có CO CQ
- Bàn giao 01 bộ hồ sơ chất lượng bao gồm đầy đủ các chứng chỉ nguồn gốc xuất xứ của sản phẩm và vật liệu
- Bàn giao 1 Video phim tư liệu quá trình thi công và hoàn thiện.